Projektowanie Garaży Podziemnych

Http Buildercorp Pl Wp Content Uploads 2017 11 Garaze Pdf

Http Buildercorp Pl Wp Content Uploads 2017 11 Garaze Pdf

Http Zim Pwr Wroc Pl Strona Przybyla Pliki Podstawy3 Pdf

Http Zim Pwr Wroc Pl Strona Przybyla Pliki Podstawy3 Pdf

Wentylacja Oddymiajaca Garazu Przyklad Uprawnienia Budowlane

Wentylacja Oddymiajaca Garazu Przyklad Uprawnienia Budowlane

Ksztaltowanie Przejsc Podziemnych I Garaŝy C D Pdf Free Download

Ksztaltowanie Przejsc Podziemnych I Garaŝy C D Pdf Free Download

Projektowanie I Realizacja Wielokondygnacyjnych Garazy Podziemnych

Projektowanie I Realizacja Wielokondygnacyjnych Garazy Podziemnych

Rynek W Koszalinie Krakow Biuro Architektoniczne Kobe Studio

Rynek W Koszalinie Krakow Biuro Architektoniczne Kobe Studio

Rynek W Koszalinie Krakow Biuro Architektoniczne Kobe Studio

Hanna michalak politechnika warszawska wybrane przykłady problemów technicznych i technologicznych występujących w różnych etapach projektowania i wznoszenia części podziemnych w budyn kach wielokondygnacyjnych.

Projektowanie garaży podziemnych. Kształtowanie konstrukcyjno przestrzenne garaży podziemnych na terenach silnie zurbanizowanych. Inaczej jest w przypadku podziemnych garaży jedno i dwukondygnacyjnych wnioski z analiz c d. Projektowanie garaży to bardzo ważny temat dla projektantów. Nieuwzględnienie narzuconych prawem wymiarów może spowodować odrzucenie projektu we właściwym urzędzie.

Może to znacznie przedłużyć uzyskanie pozwolenia na budowę. Projektowanie i realizacja wielokondygnacyjnych garaży podziemnych dr hab. Oficyna wydawnicza politechniki warszawskiej. Słupy mają zazwyczaj wymiary rzędu 50 60 cm.

Projektowanie i realizacja wielokondygnacyjnych garaży podziemnych. Inaczej jest w przypadku podziemnych garaży jedno dwukondygnacyjnych wnioski z analiz c d. Naukowe seria architektura zeszyt nr 2. Płyty stropowe garaży samodzielnych maja grubości często przekraczające 50 cm pośrednie często 25 cm płyty denne o grubościach nawet 70 cm i więcej.

Geoinżynieria drogi mosty tunele 3 2009 22 hanna michalak. Płyty stropowe garaży samodzielnych maja grubości często przekraczające 50 cm pośrednie często 25 cm płyty denne o grubościach nawet 70 cm i więcej. Słupy mają zazwyczaj wymiary rzędu 50 60 cm.

Plac Kossaka Katarzyna Mucha Architektura Krajobrazu Krakow

Plac Kossaka Katarzyna Mucha Architektura Krajobrazu Krakow

Projektowanie Wentylacji Pozarowej W Garazach Podziemnych W Polsce

Projektowanie Wentylacji Pozarowej W Garazach Podziemnych W Polsce

Https Inzynieria Com Uploaded Magazines Pdf Gdmt22 Projektowanie I Realizacja Wielokondygnacyjnych Garazy Podziemnych Pdf

Https Inzynieria Com Uploaded Magazines Pdf Gdmt22 Projektowanie I Realizacja Wielokondygnacyjnych Garazy Podziemnych Pdf

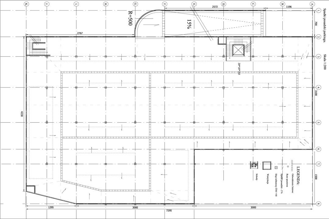
Garaz Podziemny Rzut Szukaj W Google Garaz Google

Garaz Podziemny Rzut Szukaj W Google Garaz Google

Ksztaltowanie Konstrukcyjne Podbudow Istniejacych Budynkow

Ksztaltowanie Konstrukcyjne Podbudow Istniejacych Budynkow

Parking Wielopoziomowy Optymalny Funkcjonalnie Chodor Projekt

Parking Wielopoziomowy Optymalny Funkcjonalnie Chodor Projekt

Source : pinterest.com